Megbízói igény volt a III. kerület dinamikusan fejlődő területén a postcovid időszakra jellemző home-office-hoz igazodó közép-felső kategóriás irodákkal és üzletekkel kialakított irodaház megtervezése, amely mind energetikailag, mind térkapcsolatait tekintve és a beépített anyagok minőségében is előremutató, energia és környezettudatos technológiákkal készül.
Leírás:
megbízó: Buda-Office Kft.
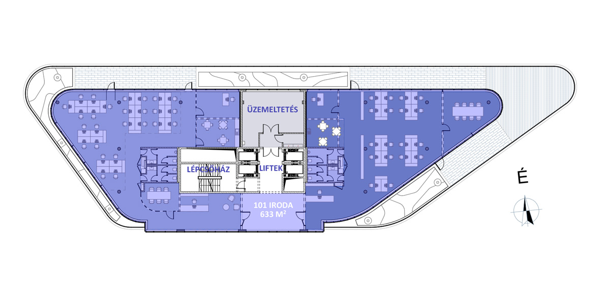
nettó alapterület: 9.225 m²
tervezés éve: 2021-2024
építészet: Gyetvai Géza, Szőke János, Tolnai Linda és Solongo Batsaikhan (Sketch Arch Design)
Leírás:
megbízó: Buda-Office Kft.
nettó alapterület: 9.225 m²
tervezés éve: 2021-2024
építészet: Gyetvai Géza, Szőke János, Tolnai Linda és Solongo Batsaikhan (Sketch Arch Design)
















